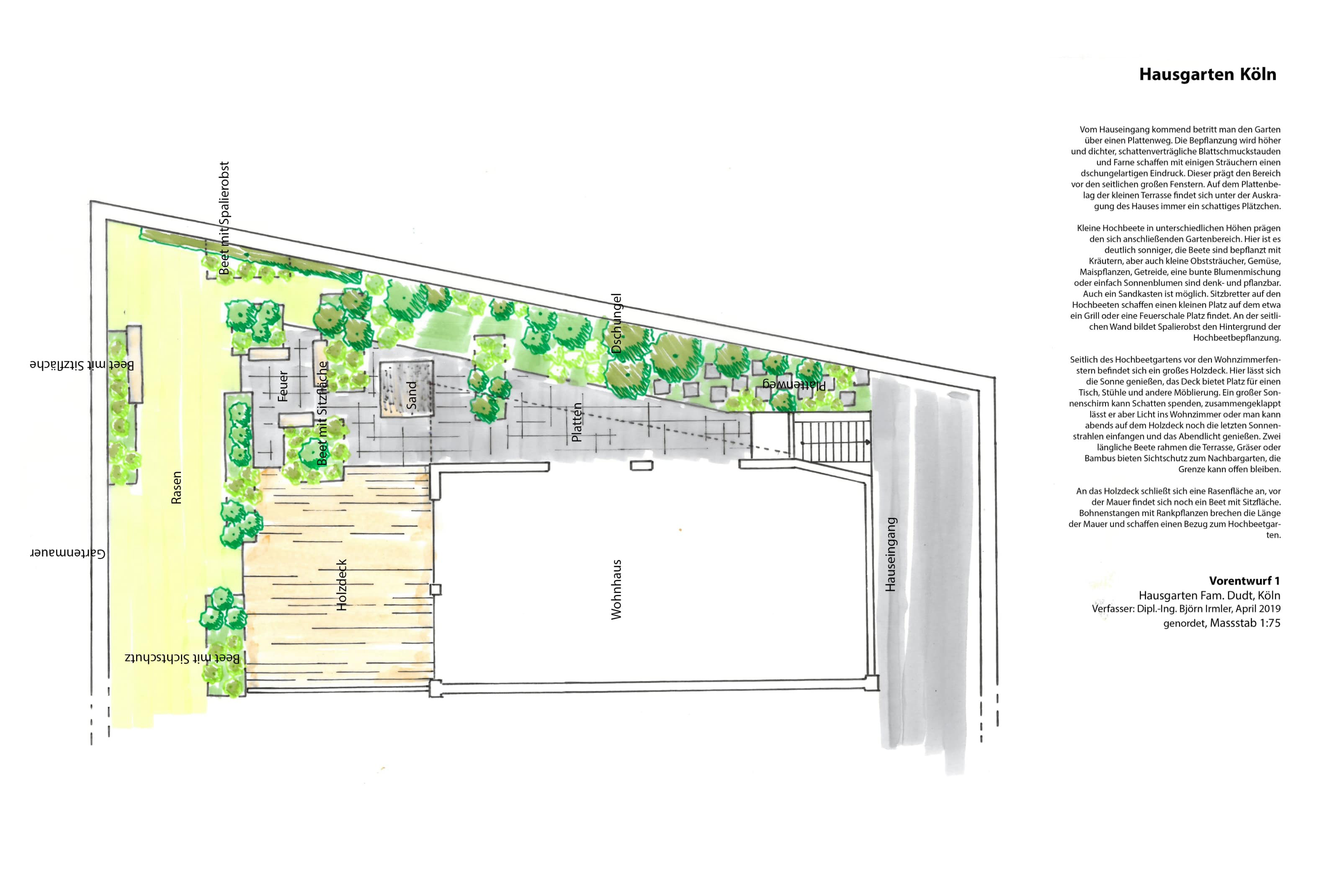
Reiheneckhausgarten
Info

Info 01
Step 01
Beschreibung

Info 02
Step 02
Beschreibung